MHC系列全自動平壓平模切機,是我公司在原先全自動平壓平模切機輸送部加裝了伺服電機系統控制與飛達部采用伺服電機控制系統,保證了飛達平穩運行,有效的解決了厚簿紙送紙多功能選擇,送紙系統分為三種送紙方式:一,單張送紙功能(適用于4-8mm瓦楞紙板)二,雙張重疊送紙功能(適用于2-4mm瓦楞紙板)三,多張重疊送紙功能(適用于250g-2mm紙張)。本機具有手動送紙與全自動飛達送紙兩種操作功能。在瓦楞紙平整的前提下可以采用全自動飛達送紙,減少了勞動力,使本機提高了效率;如在瓦楞紙比較翹或者不平整的前提下可以采用手動送紙,保持本機一機多用功能。本產品是結合國內外同類產品的優越性能研制開發的適用于高檔彩盒、彩箱模切的專用設備。本機采用高強度叼紙牙排,先進的開牙叼紙機構能適應各類型紙板、卡紙、瓦楞紙;前后定位及側定位機構使紙張的模切精度得以保證;具備高精度間歇機構;動作迅速的氣動離合、氣動鎖板;使用可編程控制器及人機界面,數字顯示機器的工作速度、加工張數、總運行時間;機器的故障顯示使故障排除操作非常方便;應用變頻控制器控制主電機無級調速,運行平穩;本機多處設有傳感器和安全裝置,保障機器正常工作和人身安全。

飛達頭升架式裝置(手自一體,兩用)。

三種送紙方式:
● 單張送紙(適用于4-8.5MM瓦楞紙板)
● 雙張重疊送紙(適用于2-4MM瓦楞紙板)
● 多張重疊送紙(適用于≦2MM紙張)

進口高精度間歇分割器,長期使用也能保證較高的定位精度。

無需任何操作,主、副收紙裝置自動切換,大大提升工作效率。

本機采用德國穆勒、日本歐姆龍電器元件,操作簡易,保養維護方便。

整機采用集中自動供油系統,確保傳動部位不缺油。
| 輸紙部 | MHC-1100E/1300E/1350E/1500E/1650E |
| 01、不停機高速送紙部 | 〇 |
| 02、飛達頭升架式裝置(手自一體,兩用) | 〇 |
| 03、魚鱗式強力吸紙飛達頭,4 吸 6 送,吸頭可配合紙張的變形狀況調試各種吸紙角度 | 〇 |
| 04、可調式吸風筒,吸頭及分氣閥超硬合金處理 | 〇 |
| 05、3 道飛達頭防撞裝置 | 〇 |
| 06、橫向分紙吹風裝置 | 〇 |
| 07、主給紙堆電動左右微調裝置 | 〇 |
| 08、預堆紙裝置配置軌道使操作人員可準確方便地將紙堆送入飛達 | 〇 |
| 09、紙張對位調節裝置,能夠在不停機的狀態下對紙張到達前規距離進行手動調整 | 〇 |
| 10、推拉兩用側規,操作側、傳動側各一套。側規可在推拉規間調節以滿足不同紙張需求 | 〇 |
| 11、側規、前規紙張光電檢測 | 〇 |
| 12、伺服電機輸送定位裝置 | 〇 |
| 13、三種送紙方式: 單張送紙(適用于4-8.5MM瓦楞紙板) 雙張重疊送紙(適用于2-4MM瓦楞紙板) 多張重疊送紙(適用于≦2MM紙張) | 〇 |
| 14、機電式雙張檢測器 | 〇 |
| 15、進口輸紙皮帶及不銹鋼傳送板 | 〇 |
| 16、輸紙框氣動抬起裝置 | 〇 |
| 17、PLC 及電子凸輪控制整機的時序 | 〇 |
| 18、德國貝克品牌吹吸兩用真空泵 | 〇 |
| 模切部 | |
| 01、整機鑄件采用QT-700-2球墨鑄鐵 | 〇 |
| 02、進口蝸輪,蝸桿與40cr曲軸 | 〇 |
| 03、整套進口陽極處理鋁合金牙排及定位結構,每條牙排采用可調式牙排結構 | 〇 |
| 04、進口主傳動鏈條 | 〇 |
| 05、進口間歇分割器 | 〇 |
| 06、進口同步帶、帶輪傳動 | 〇 |
| 07、主傳動進口氣動離合器剎車裝置 | 〇 |
| 08、壓力自動調節裝置,可通過PLC觸摸屏按鍵實現壓力的準確控制 | 〇 |
| 09、模切壓力采用變形測量器直接精確測量,并在人機界面上顯示 | 〇 |
| 10、模切底板和刀模板回轉裝置 | 〇 |
| 11、模切刀版與模切板框的聯接采用抓釘螺母和螺絲形式,裝入時采用中央定位系統,換版快捷、準確 | 〇 |
| 12、模切板框和模切下墊板采用日本SMC氣量調節器鎖定,避免上板框鎖定安裝不到位的情況,有效避免人為因素操作造成的損失 | 〇 |
| 13、日本SMC氣壓檢測裝置,氣壓過低報警提示 | 〇 |
| 14、配備儲氣罐,確保整機氣壓穩定 | 〇 |
| 15、整機采用集中自動供油系統,確保傳動部位不缺油 | 〇 |
| 收紙部 | |
| 01、卷簾式輔收紙架,可實現不停機收紙 | 〇 |
| 02、可調機械式收紙毛刷壓紙機構,幫助牙排卸紙并堆疊 | 〇 |
| 03、收紙齊紙裝置 | 〇 |
| 04、上下極限開關光電檢測,防止收紙臺堆紙過高和紙張上卷 | 〇 |
| 05、收紙雙向輔助吹風,手動取樣機構,操作方便 | 〇 |
| 06、彈簧鏈條調節裝置,調節彈簧鏈條漲緊后,可減少牙排轉向的慣量沖擊,并保持鏈條的均衡漲緊度 | 〇 |
| 電氣部 | |
| 01、自主研發的PLC控制系統 | 〇 |
| 02、模切部采用 10.4 英寸觸摸顯示屏 | 〇 |
| 03、整機采用德國Moeller的繼電器、交流接觸器、空氣開關和按鈕,保證了電器部分的穩定和可靠 | 〇 |
| 04、整機采用日本歐姆龍 Omron 的光電開關,光纖,編碼器和傳感器,確保電氣檢測各部位動作的準確和穩定 | 〇 |
注:此配置單只供參考,正式配置單以合同為準。標配:〇;選配:△
| 型號 | MHC-1100E | MHC-1300E | MHC-1350E | MHC-1500E | MHC-1650E |
| 最大紙張幅面 | 1100×790mm | 1290×940mm | 1350×1100mm | 1500×1100mm | 1650×1200mm |
| 最小紙張幅面 | 400×350mm | 470×450mm | 470×450mm | 470×450mm | 550×500mm |
| 最大模切尺寸 | 1070×770mm | 1280×920mm | 1330×1080mm | 1480×1080mm | 1620×1180mm |
| 叼口空白 | 9-17mm | 9-17mm | 9-17mm | 9-17mm | 9-17mm |
| 刀線高 | 23.8mm | 23.8mm | 23.8mm | 23.8mm | 23.8mm |
| 板框內版尺寸 | 1100×790mm | 1310×950mm | 1390×1120mm | 1510×1120mm | 1682×1220mm |
| 紙張適用范圍 | ≥200g/m2卡紙,≤7mm瓦楞紙,E、B、C、A和AB瓦楞紙 | ≥200g/m2卡紙,≤8.5mm瓦楞紙,E、B、C、A和AB瓦楞紙 | ≥200g/m2卡紙,≤8.5mm瓦楞紙,E、B、C、A和AB瓦楞紙 | ≥250g/m2卡紙,≤8.5mm瓦楞紙,E、B、C、A和AB瓦楞紙 | ≥350g/m2卡紙,≤8.5mm瓦楞紙,E、B、C、A和AB瓦楞紙 |
| 模切精度 | ≤±0.1mm | ≤±0.15mm | ≤±0.15mm | ≤±0.15mm | ≤±0.2mm |
| 最大工作壓力 | 300T | 400T | 400T | 400T | 400T |
| 機器最高速度 | 7500s/h | 5500s/h | 5500s/h | 5500s/h | 4500s/h |
| 最大給紙堆高(含托板) | 1600mm | 1600mm | 1600mm | 1600mm | 1600mm |
| 最大收紙堆高(含托板) | 1400mm | 1400mm | 1400mm | 1400mm | 1400mm |
| 主電機功率 | 11kw | 11kw | 15kw | 15kw | 18.5kw |
| 滿載功率 | 18kw | 18kw | 22kw | 22kw | 26kw |
| 氣源要求 | 壓力: 0.6~0.7Mpa,流量: ≥0.37m3/min | 壓力: 0.6~0.7Mpa,流量: ≥0.37m3/min | 壓力: 0.6~0.7Mpa,流量: ≥0.37m3/min | 壓力: 0.6~0.7Mpa,流量: ≥0.37m3/min | 壓力: 0.6~0.7Mpa,流量: ≥0.75m3/min |
| 機器重量 | 16T | 18T | 20T | 21T | 23T |
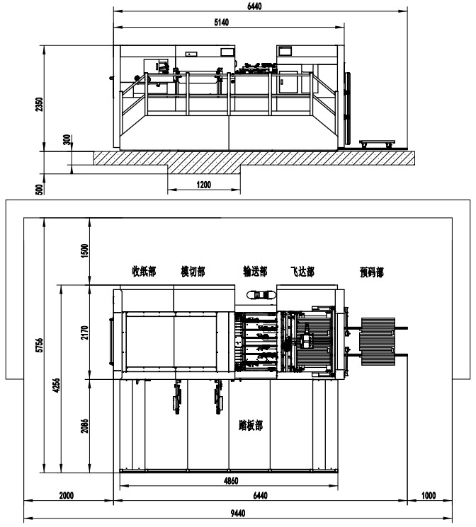
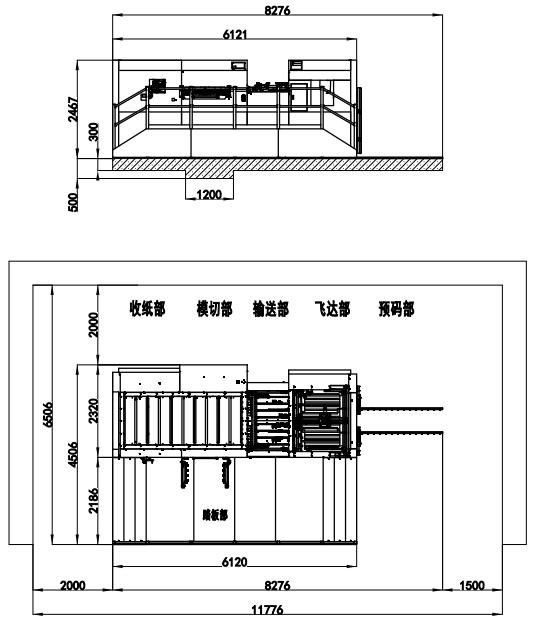
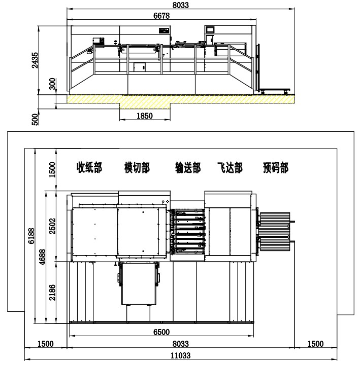
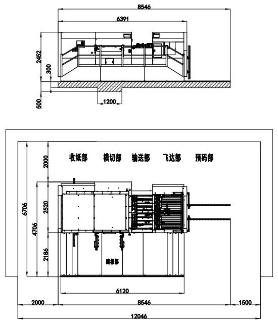
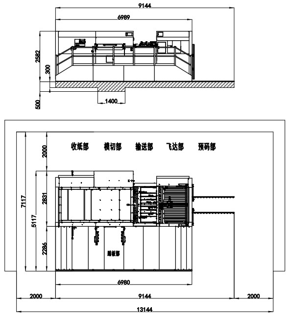
| 整機尺寸 | 6440×4256×2350mm (長含預上紙軌道;寬含腳踏板) | 8276×4506×2467mm (長含預上紙軌道;寬含腳踏板) | 8033×4688×2435mm (長含預上紙軌道;寬含腳踏板) | 8546×4706×2452mm (長含預上紙軌道;寬含腳踏板) | 9144×5117×2582mm (長含預上紙軌道;寬含腳踏板) |




