
● 高速精密前沿送紙裝置可穩定輸送各種類型和品質的瓦楞紙,適應性強,工作范圍廣。
● 特殊的聚乙酯送紙膠輪配合柵欄托紙和氣墊確保礙重翹曲紙板輸送和紙板的精準到位。
● 變頻吸風量微調裝置以適應從F到五層不同厚度瓦楞的送紙要求。

● 左右各一套側定位推規,保證紙板側定位精準。
● 輸紙步距調整采用先進的不停機調節。
● 前擋前后位置可根據咬口尺寸作微調。

進口高精度間歇分割器,長期使用也能保證較高的定位精度。

● 采用三框清廢機構。
● 中間清廢板的安裝采用中心線快速● 定位安裝方式,使操作人員可以快速安裝清廢板,提高換板效率。

卷簾式輔收紙架,可實現不停機收紙,收紙雙向輔助吹風,手動取樣機構,操作方便。

本機采用德國穆勒、日本歐姆龍電器元件,操作簡易,保養維護方便。

整機采用集中自動供油系統,確保傳動部位不缺油。
| 輸紙部 | MHC-1100FC/1300FC/1350FC/1500FC/1650FC |
| 01、高速精密前沿送紙裝置,送紙精度高,吸力強勁,不易打滑,可穩定輸送各種類型的瓦楞紙 | 〇 |
| 02、特殊的聚乙酯送紙膠輪配合柵欄式托紙架和氣墊,確保厚重翹曲紙板輸送順暢和紙板的到位精準 | 〇 |
| 03、變頻吸風量微調裝置,以適應從 F 到五層不同厚度瓦楞紙的送紙要求 | 〇 |
| 04、電動側推擋板(左右兩側) | 〇 |
| 05、左、右側擋板可以獨立位置調整也可同步調整。斜度前擋板前后、上下可微調,減少紙堆下面紙張的壓力,送紙更順暢 | 〇 |
| 06、左右側定位推規,確保紙板側定位精準 | 〇 |
| 07、托板上下高度調節裝置,按紙質和厚度調節,送紙更順暢、穩定 | 〇 |
| 08、前檔板前后位置微調裝置,可根據咬口尺寸微調 | 〇 |
| 09、輸紙步距不停機調節裝置 | 〇 |
| 模切部 | |
| 01、整機鑄件采用QT-700-2球墨鑄鐵 | 〇 |
| 02、進口蝸輪,蝸桿與 40cr 曲軸 | 〇 |
| 03、整套進口陽極處理鋁合金牙排及定位結構,每條牙排采用可調式牙排結構 | 〇 |
| 04、進口主傳動鏈條 | 〇 |
| 05、進口間歇分割器 | 〇 |
| 06、進口同步帶、帶輪傳動 | 〇 |
| 07、主傳動進口氣動離合器剎車裝置 | 〇 |
| 08、壓力自動調節裝置,可通過PLC觸摸屏按鍵實現壓力的準確控制 | 〇 |
| 09、模切壓力采用變形測量器直接精確測量,并在人機界面上顯示 | 〇 |
| 10、模切底板和刀模板回轉裝置 | 〇 |
| 11、模切刀版與模切板框的聯接采用抓釘螺母和螺絲形式,裝入時采用中央定位系統,換版快捷、準確 | 〇 |
| 12、模切板框和模切下墊板采用日本SMC氣量調節器鎖定,避免上板框鎖定安裝不到位的情況,有效避免人為因素操作造成的損失 | 〇 |
| 13、日本SMC氣壓檢測裝置,氣壓過低報警提示 | 〇 |
| 14、配備儲氣罐,確保整機氣壓穩定 | 〇 |
| 15、整機采用集中自動供油系統,確保傳動部位不缺油 | 〇 |
| 清廢部 | |
| 01、上清廢傳動機構 | 〇 |
| 02、上清廢框抬起裝置,可任意選擇是否使用清廢功能 | 〇 |
| 03、中間清廢陰模傳動機構 | 〇 |
| 04、下清廢傳動機構 | 〇 |
| 05、中間清廢板的安裝采用中心線快速定位安裝方式,使操作人員可以快速安裝清廢板,提高換板效率 | 〇 |
| 收紙部 | |
| 01、卷簾式輔收紙架,可實現不停機收紙 | 〇 |
| 02、高堆收紙臺升降裝置,收紙結構可整堆紙拉出機外(高堆收紙專用) | 〇 |
| 03、收紙齊紙裝置 | 〇 |
| 04、上下極限開關光電檢測,防止收紙臺堆紙過高和紙張上卷 | 〇 |
| 05、彈簧鏈條調節裝置,調節彈簧鏈條漲緊后,可減少牙排轉向的慣量沖擊,并保持鏈條的均衡漲緊度 | 〇 |
| 電氣部 | |
| 01、自主研發的PLC控制系統 | 〇 |
| 02、模切部采用10.4英寸觸摸顯示屏 | 〇 |
| 03、整機采用德國Moeller的繼電器、交流接觸器、空氣開關和按鈕,保證了電器部分的穩定和可靠 | 〇 |
| 04、整機采用日本歐姆龍Omron的光電開關,光纖,編碼器和傳感器,確保電氣檢測各部位動作的準確和穩定 | 〇 |
注:此配置單只供參考,正式配置單以合同為準。標配:〇;選配:△
| 型號 | MHC-1100FC | MHC-1300FC | MHC-1350FC | MHC-1500FC | MHC-1650FC |
| 最大紙張幅面 | 1100×790mm | 1290×940mm | 1350×1100mm | 1500×1100mm | 1650×1200mm |
| 最小紙張幅面 | 470×450mm | 470×450mm | 470×450mm | 470×450mm | 550×500mm |
| 最大模切幅面 | 1070×770mm | 1280×920mm | 1330×1080mm | 1480×1080mm | 1620×1180mm |
| 最小廢邊寬度 | 10-18mm | 10-18mm | 10-18mm | 10-18mm | 10-18mm |
| 叼口空白 | 9-17mm | 9-17mm | 9-17mm | 9-17mm | 9-17mm |
| 刀線高 | 23.8mm | 23.8mm | 23.8mm | 23.8mm | 23.8mm |
| 板框內版尺寸 | 1100×790mm | 1310×950mm | 1390×1120mm | 1510×1120mm | 1682×1220mm |
| 適用紙張范圍 | ≤7mm瓦楞紙, E、B、C、A 和 AB 瓦楞紙 | ≤8.5mm瓦楞紙, E、B、C、A 和 AB 瓦楞紙 | ≤8.5mm瓦楞紙, E、B、C、A 和 AB 瓦楞紙 | ≤8.5mm瓦楞紙, E、B、C、A 和 AB 瓦楞紙 | ≤8.5mm瓦楞紙, E、B、C、A 和 AB 瓦楞紙 |
| 模切精度 | ≤±0.1mm | ≤±0.15mm | ≤±0.15mm | ≤±0.15mm | ≤±0.2mm |
| 最大工作壓力 | 300T | 400T | 400T | 400T | 400T |
| 最大工作速度 | 7500s/h | 5500s/h | 5500s/h | 5500s/h | 4500s/h |
| 最大收紙堆高(含托板) | 1400mm | 1400mm | 1400mm | 1400mm | 1400mm |
| 主電機功率 | 11kw | 11kw | 15kw | 15kw | 18.5kw |
| 滿載功率 | 23kw | 23kw | 28kw | 28kw | 32kw |
| 氣源要求 | 壓力: 0.6-0.7MPa,流量: ≥0.37m3/min | 壓力: 0.6-0.7MPa,流量: ≥0.37m3/min | 壓力: 0.6-0.7MPa,流量: ≥0.37m3/min | 壓力: 0.6-0.7MPa,流量: ≥0.37m3/min | 壓力: 0.6-0.7MPa,流量: ≥0.75m3/min |
| 機器總重 | 18T | 20T | 23T | 23T | 25T |
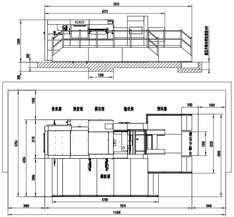
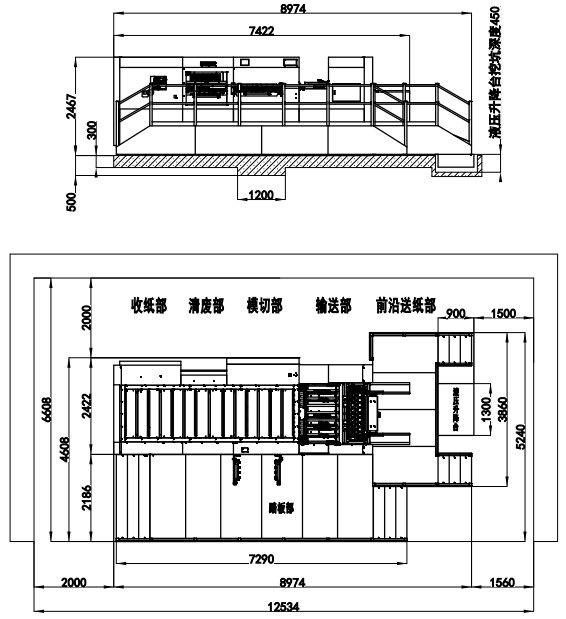
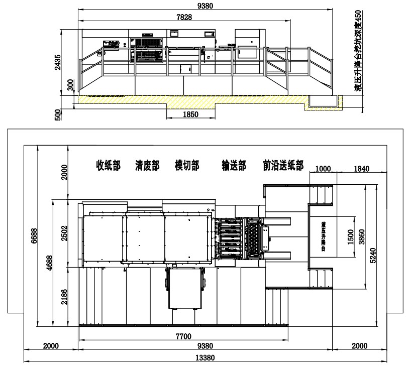
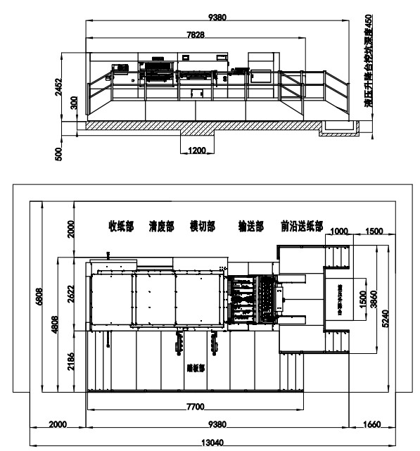
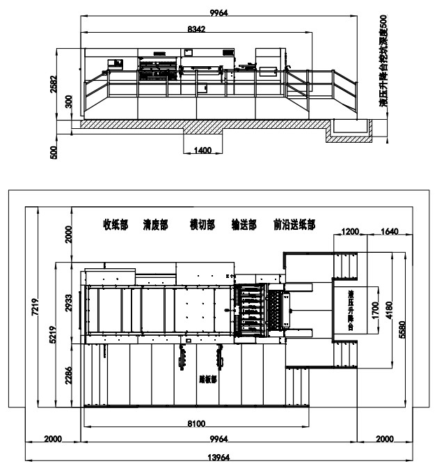
| 整機尺寸 | 7810×4500×2350mm | 8974×5240×2467mm | 9380×5240×2435mm | 9380×5240×2452mm | 9964×5580×2582mm |




